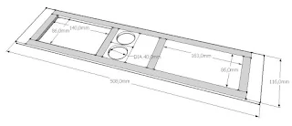
Διαχωριστικά-τροφοδότες για κυψέλη τριών διαμερισμάτων και καπάκι τύπου Αυστραλίας
Μια διαφορά προκύπτει μεταξύ των τριών διαχωριστικών λόγο του πλάτους του μεσαίου διαχωριστικού που είναι μικρότερο από τα υπόλοιπα δύο γιατί δεν στηρίζεται στα πλαϊνά της κυψέλης . Η διαφορά αυτή έχει να κάνει με το πλάτος της βάσης του μεσαίου τροφοδότη κι όχι με τον τροφοδότη σαν χωρητικότητα που θα είναι η ίδια και για τους τρεις .
Υλικά για τα δύο ακριανά διαχωριστικά :
Δύο τμήματα κόντρα πλακέ πάχους 6mm με διαστάσεις 138,5 Χ 508mm
Τέσσερις τάβλες ελάτης πάχους 15mm με διαστάσεις 50 Χ 458 mm
Οχτώ τάβλες ελάτης πάχους 15mm με διαστάσεις 50 Χ 86mm
Δύο δοκαράκια 35 Χ 35mm μήκους 86mm
Δύο ελάσματα διάτρητα 105 Χ 116mm
Δύο τμήματα κόντρα πλακέ 161,5 Χ 116mm πάχους 6mm
Κόλλα ακρυλική , δίχαλα 35 και 40mm
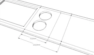
Υλικά για το μεσαίο διαχωριστικό:
Ένα τμήμα κόντρα πλακέ πάχους 6mm με διαστάσεις 116 Χ 508mm
Δύο τάβλες ελάτης πάχους 15mm με διαστάσεις 50 Χ 458 mm
Τέσσερις τάβλες ελάτης πάχους 15mm με διαστάσεις 50 Χ 86mm
Ένα δοκαράκι 35 Χ 35mm μήκους 86m
Έλασμα διάτρητο 105 Χ 116mm
Τμήμα κόντρα πλακέ 161,5 Χ 116mm πάχους 6mm
Κόλλα ακρυλική , δίχαλα 35 και 40mm
Προετοιμασία :
H προετοιμασία των τμημάτων είναι όμοια με της προηγουμένης κατασκευής. τα σχήματα που ακολουθούν αναφέρονται στην προετοιμασία του μεσαίου διαχωριστικού.
Τα επόμενα σχήματα που αναφέρονται στην προετοιμασία των ακριανών διαχωριστικών.
Το κενό μεταξύ της βάσης και της τάβλας στο ένα πλαϊνό του διαχωριστικού είναι 22,5mm κι όχι 25mm , όλες οι άλλες εργασίες είναι σχεδόν όμοιες.
Σειρά έχει η προετοιμασία των δοκαριών 35 Χ 35mm με την δημιουργία του κεκλιμένου ,
Η συνομολόγηση θα ξεκινήσει πρώτα για το μεσαίο διαχωριστικό – τροφοδότη με την σύνδεση της επιφάνειας από κόντρα πλακέ με τις τάβλες ελάτης και στην συνέχεια με το δοκαράκι .
Πηγή http://marathon-honey.blogspot.com/




















